


| ◆專為饋線保護裝置(FTU)配套設計的充電式模塊電源; | ||||
| ◆具有對外接充電電池的智能充放電管理功能;當電池容量不夠時,能自動對電池進行充電。當交流輸入斷電時,電池能不間斷地對負載供電,具有電池過充過放保護功能;具有電池充、放電狀態顯示;具有電池活化功能,可手動或通過外部信號自動對電池進行活化維護;具有電池欠壓告警和交流輸入失電告警功能和電池活化信號; | ||||
| ◆最大瞬時輸出功率可達300W,體積小,轉換效率高; | ||||
| ◆金屬外殼模塊化封裝,端子方式出線,安裝方便; | ||||
| ◆絕緣安全性好,隔離強度高; | ||||
| ◆采用優質器件,精心設計,可靠性高; | ||||
| ◆電磁兼容性符合國家標準要求,抗干擾能力強。 | ||||
二、電源內部結構圖
三、技術參數
| 技術參數 | 測試條件 | 最小值 | 典型值 | 最大值 | |||||
| 輸入參數 | 輸入電壓范圍(Vac) | 175 | 220 | 265 | |||||
| 輸入頻率(Hz) | 47 | 50 | 63 | ||||||
| 輸出電壓(V) | Vi=AC175V~AC265V,Io=0~3A | 26.5 | 27.0 | 27.5 | |||||
| 輸出電流(A) | Vi=AC175V~AC265V,不含充電電流 | 0 | 3 | 12(30Smax) | |||||
| 紋波噪聲(mv) | 全范圍輸入,額定負載 | --- | --- | 280 | |||||
| 源效應(%) | 全范圍輸入,輸出滿載 | --- | --- | ±1 | |||||
| 負載效應(%) | 標稱輸入,10%~100%負載之間變化 | --- | --- | ±2 | |||||
| 出廠設定電池浮充電壓(V) |
Vi=AC175V~AC265V Io=3A,IB=0.1A,Ta=25℃ |
26.5 | 27.0 | 27.5 | |||||
| 電池充電電流(A) | Vi=AC175V~AC265V,Io=3A | 0.6 | 0.75 | 0.9 | |||||
| 電池放電關斷點(V) | Io=1A | 19.5 | 20.0 | 21 | |||||
| 電池活化完成點(V) | Io=1A | 22.0 | 22.5 | 23.5 | |||||
| 電池欠壓告警點(V) | Io=1A | 22.0 | 22.5 | 23.5 | |||||
| 電池關斷延時(S) | Io=1A | --- | 10 | --- | |||||
| 活化觸點接觸時間(s) | 活化時 | --- | 1 | 5 | |||||
| 效率(%) | 額定輸入輸出 | 85 | 86 | --- | |||||
| 隔離耐壓 | 輸入對輸出:2500VAC/1min/5mA | 2500Vac | --- | --- | |||||
| 輸入對地:2500VAC/1min/5mA | 2500Vac | --- | --- | ||||||
| 輸出對地:2500VAC/1min/5mA | 2500Vac | --- | --- | ||||||
| 告警信號對其他:2500VAC/ 1min /5mA | 2500Vac | --- | --- | ||||||
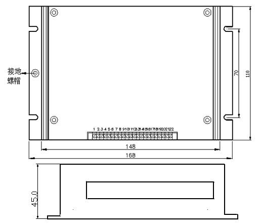
| 外型尺寸 | 長 x 寬 x 高:168*110*45(mm) | ||||||||
| 電磁兼容 | DL/T721-2013 | 四級 | |||||||
| 工作溫度(℃) | 額定輸出輸出 | -40 | --- | 70 | |||||
| 存儲溫度(℃) | 無結露 | -45 | --- | 80 | |||||
| 大氣壓力(KPa) | 80 | --- | 100 | ||||||
四、電源尺寸(單位:毫米)
引腳定義說明:
|
1 |
L |
電源火線輸入 |
9 |
VH |
電池故障告警 |
17 |
V1 |
負載正極 |
|
2 |
FG |
保護地 |
10 |
HK |
遙控活化啟動 |
18 |
V1 |
負載正極 |
|
3 |
N |
電源零線輸入 |
11 |
HG |
遙控活化退出 |
19 |
B+ |
電池正極 |
|
4 |
NC |
空腳 |
12 |
BG |
遙控電池退出 |
20 |
B+ |
電池正極 |
|
5 |
VC |
告警輸入信號正極 |
13 |
RL |
活化負載接入點 |
21 |
B- |
電池負極 |
|
6 |
POK |
輸入故障告警 |
14 |
COM |
遙控信號公共接地點 |
22 |
B- |
電池負極 |
|
7 |
HOK |
活化狀態信號 |
15 |
G1 |
負載負極 |
|
|
|
|
8 |
VL |
電池欠壓告警 |
16 |
G1 |
負載負極 |
|
|
|
五、使用說明
| 5.1 電源指示燈 | |||||||||
| 充電:綠色指示燈,表明電源正常工作,同時在給電池充電; | |||||||||
| 放電:紅色指示燈,表明電源已經停止工作,同時電池在對負載放電或電池處于活化狀態; | |||||||||
| 欠壓:紅色指示燈,指示燈亮的時候,表明電源輸出處于欠壓狀態; | |||||||||
| 活化:紅色指示燈,表明電源處于活化狀態; | |||||||||
| 故障:紅色指示燈,表明電源處于故障狀態:即輸出過壓保護。 | |||||||||
| 5.2 電源使用 | |||||||||
| 5.2.1參見本說明接線示意圖,確保正確連接,本電源適用于對6——30Ah鉛酸電池或膠體免維護電池進行充電;電池反接時要有如下反應:1.蜂鳴器發出報警聲 2.負載端無輸出 3..交流上電,電源不啟動 | |||||||||
| 5.2.2電源本身對負載輸出電流,同時為電池進行恒流充電,當電池充電完成后,電源自動轉為浮充電狀態。 | |||||||||
| 5.2.3當交流斷電時,電池不間斷為負載供電,零切換時間,電池放電至欠壓告警點時,電源輸出電池欠壓告警信號,當電池放電低于欠壓保護點時,延時大約10秒后,電源關閉負載輸出;如果電池需要提前退出,只需要將BG端子對COM短接一次(不小于1秒,但最好不要超過5秒)。但是,請特別注意:在電池處于活化狀態時請用電池提前退出的功能,否者將會造成電源輸出電壓出現短時中斷,影響系統工作。 | |||||||||
| 5.2.4當負載需要較大電流,超出電源提供的最大電流時,電源自身過流保護,負載電流開始由電池提供。 | |||||||||
| 5.2.5電池的活化,當電池長時間處于浮充電狀態,應對電池進行活化以免電池極板鈍化,活化可以由外部CPU控制的繼電器把電源的活化端子HK、COM短接一次或手動短接HK、COM(不小于1秒,但最好不要超過5秒)電源進入活化狀態,電源關閉交流輸入,電池放電,當電池放電至活化完成點時,電源重新啟動工作向負載供電并為電池充電;如果電池需要提前退出活化,可以將HG端子對COM短接一次(不小于1秒,但最好不要超過5秒),電池自動退出出活化。 | |||||||||
| 5.2.6活化端子RL的使用:此端子為電池活化時加速電池放電設置。根據不同的電池容量選擇放電電阻的大小,當電源正常工作時,該電阻不工作;當電池進入活化狀態時,電阻接通電池。放電電流的選擇:放電電流(A)=0.1*電池容量(AH)-經常性負載電流(A) 如果計算出的放電電流為負,則可以不加放電電阻;放電電阻應該妥善放置散熱,并遠離電源模塊。 | |||||||||
| 5.3 告警端子的使用 | |||||||||
| 告警輸出端子為電子結點(見內部原理圖),需在VC端輸入+5V~+24V直流電壓,在告警時告警結點導通或 截止, 告警結點帶載能力為0~5mA,告警結點壓降為0.1~0.5V。告警結點對電源輸入、輸出、機殼、保護地絕緣強度為2500Vac電壓,絕緣電阻100 MΩ。 | |||||||||
| 告警結點 | 告警名稱 |
正常時狀態 (或非活化) |
告警時狀態 (或活化) |
||||
| VC | 告警電源輸入端 | -- | -- | ||||
| BR | 輸入交流斷電告警 | 通 | 斷 | ||||
| AO | 電池活化 | 斷 | 通 | ||||
| BL | 電池欠壓告警 | 斷 | 通 | ||||
| VH | 電池故障告警 | 斷 | 通 |
| 5.4 按鍵的使用 | |||||||||
| 當電源接上電池,但是交流還沒有通電的時候,電源是沒有輸出的,這個時候如果需要電池供電,必須先讓電源通上交流電,或者按一下面板上的電池ON 按鍵。當不需要電池供電時,可以按住電池OFF鍵2~5秒,電池可以切斷輸出——此功能可以作為設備調試時使用;當電池已經欠壓,可是需要應急供電時,可以按住電池ON按 鍵放,電池持續供電。同樣,面板上的電池活化ON/OFF鍵可以用來手動控制電池的活化及退出。 | |||||||||
| 5.5 電池的使用 | |||||||||
| 本電源可配用6~30AH鉛酸電池或膠體免維護電池,電池接在電源的電池端子(B+、B-)上,負荷電流小于12A時,負載接在電源輸出端子上,非經常性負荷最大電流超過12A時,可直接接在電池上,此時電源的電池放電保護功能失效。 | |||||||||
| 5.6 面板按鍵的使用 | |||||||||
| 當電源接上電池,但是交流還沒有通電的時候,電源是沒有輸出的,這個時候如果需要電池供電,必須先讓電源通上 交流電,或者按一下面板上的電池ON 按鍵。當不需要電池供電時,可以按住電池OFF鍵10秒左右,電池可以切斷輸出——此功能可以作為設備調試時使用;當電池已經欠壓,可是需要應急供電時,可以按住電池ON按鍵不放,電池持續供電。同樣,面板上的電池活化ON/OFF鍵可以用來手動控制電池的活化及退出。 | |||||||||
六、使用注意事項
| 1、輸出請選用截面積大于2.5mm2的導線; |
| 2、請按圖正確接線,切勿接反,否則將造成電源永久性損壞! |
| 3、本產品不具備輸入過壓保護功能,輸入電壓不得超過指標極限值; |
| 4、本電源在帶電池工作時,負載禁止短路,即使很短的時間也有可能損壞電源模塊。建議在電池與電源之 |
| 間加裝一個10A的空氣開關(不可選用過大或者過小的,用戶在使用30A的沖擊負荷是,開關不會動作) |
| 則可以極大的保護電源短路; |
| 5、本產品輸出不允許并聯工作; |
| 6、本機的FG端與外殼相連,FG端應接入大地,以增加抗干擾能力; |
|
7、本電源工作時外殼較熱,請在電源周圍保留一定的縫隙保持空氣流動利于散熱,對溫度敏感的裝置盡量遠離電源。 |
官方網站
網址:http://www.aodemie.cn
地址:江蘇省無錫市惠山區錢橋錢洛路1號
總機:0510-80236783
電話:0510-80236795 0510-80231856